PRIMERA PLANTA - Promociones y Construcciones
3380
post-template-default,single,single-post,postid-3380,single-format-standard,ehf-footer,ehf-template-bridge,ehf-stylesheet-bridge-child,ajax_fade,page_not_loaded,,vertical_menu_enabled,qode_grid_1300,side_area_uncovered_from_content,footer_responsive_adv,qode-child-theme-ver-1.0.0,qode-theme-ver-17.0,qode-theme-bridge,qode_header_in_grid,wpb-js-composer js-comp-ver-5.5.5,vc_responsive,elementor-default,elementor-kit-3007
 

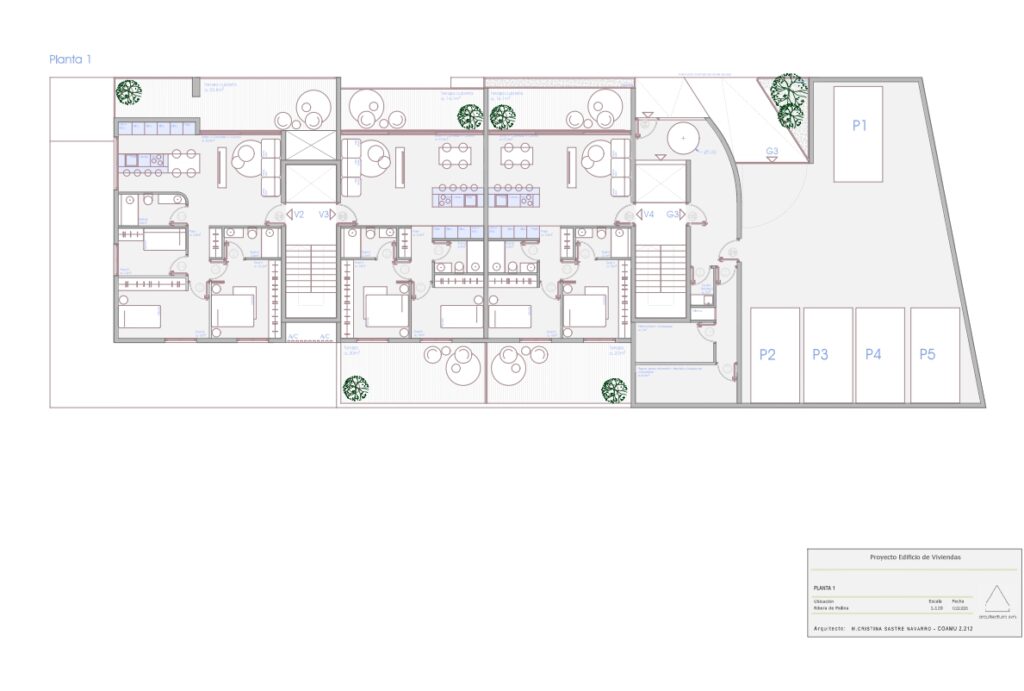
PRIMERA PLANTA

La primera planta del edificio consta de tres viviendas:

  • La vivienda V2 con tres dormitorios y dos baños.
  • Las viviendas V3 y V4 con dormitorios y dos baños

VIVIENDA V2

Situada en la primera planta del edificio. Es una vivienda de tres habitaciones y dos baños, garaje y tratero.

Acceso a vivienda a través de la escalera E1.

VIVIENDA V3

Situada en la primera planta del edificio. Es una vivienda de dos habitaciones y dos baños, garaje y tratero.

Acceso a vivienda a través de la escalera E1.

VIVIENDA V4

Situada en la primera planta del edificio. Es una vivienda de dos habitaciones y dos baños, garaje y tratero.

Acceso a vivienda a través de la escalera E2.

Vivienda ubicada en la Ribera de Molina.